Setting the stage for year-round hospitality at the beach
The challenge
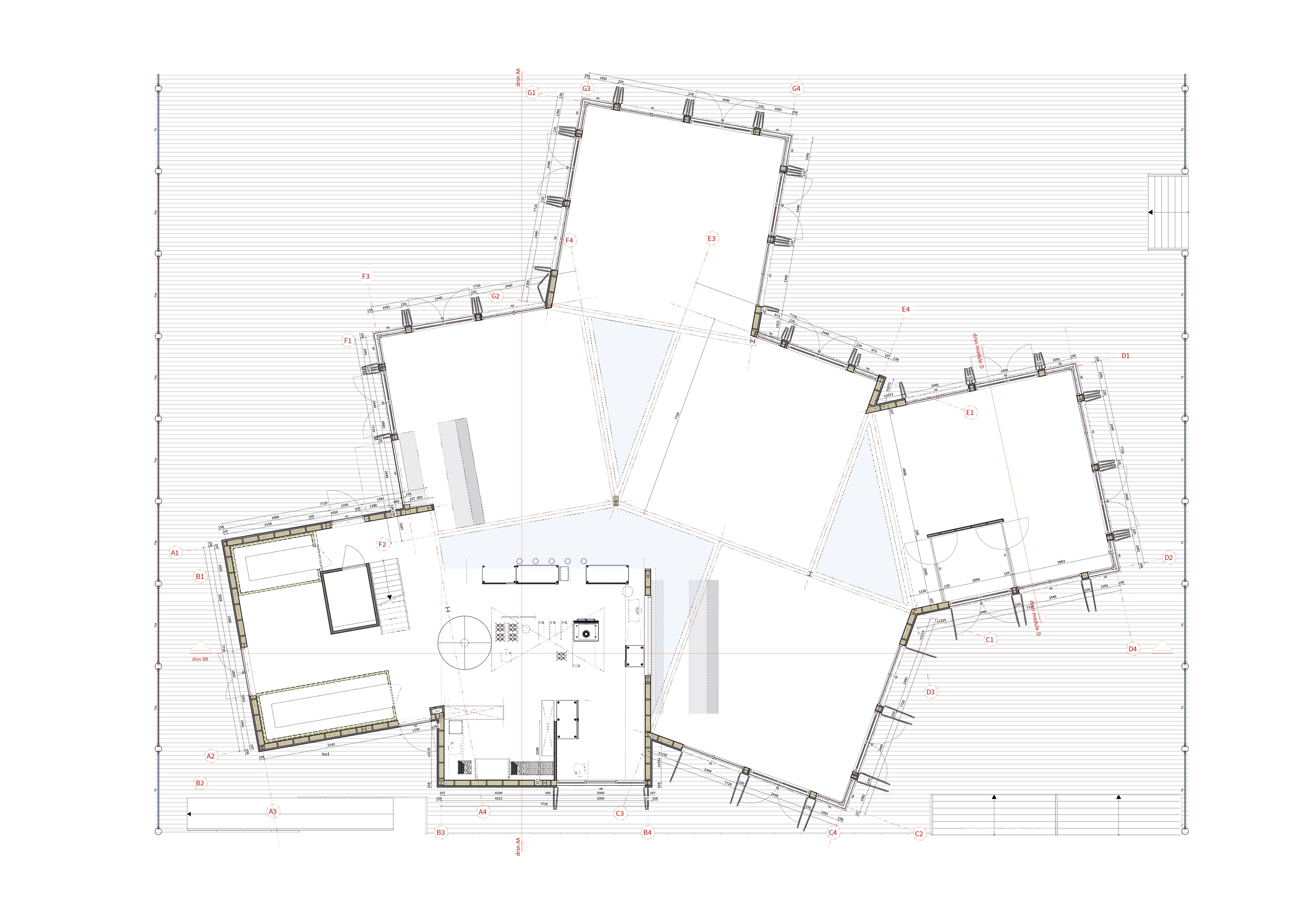
FONK Beach sought to replace their seasonal beach pavilion with a year-round venue at the beach of Scheveningen. The challenge lay in designing a new pavilion with a terrace that could withstand the demands of its coastal environment while offering a distinctive and inviting experience for its guests in all seasons.
The impact
This project presented an opportunity to redefine the beach pavilion typology by highlighting its bold coastal setting with a distinctive and inviting architectural concept. The design focused on creating a sustainable and inspiring space that celebrated its seaside context. Through close collaboration with the client, a hospitality concept was developed that integrated branding, interior design, and spatial planning, ensuring a seamless connection between the pavilion’s identity and its architectural expression.
The result laid a strong foundation for realising a venue that meets sustainability goals and provides a memorable and cohesive experience for its guests.
The feedback
"Naomi turned our initial ideas for a year-round beach pavilion into a design that fit perfectly with the surroundings and our sustainable hospitality vision. Her creative use of harbour blocks in the layout felt like 'playing with blocks' — a moment I’ll never forget."
"Beyond the pavilion’s design, Naomi’s input on the hospitality concept was invaluable. Over 18 months, she helped us get approval for building higher than zoning laws allowed and designed a fantastic pavilion, always thinking with us at every step."

Romy Rooduijn
Fonk Beach Club













